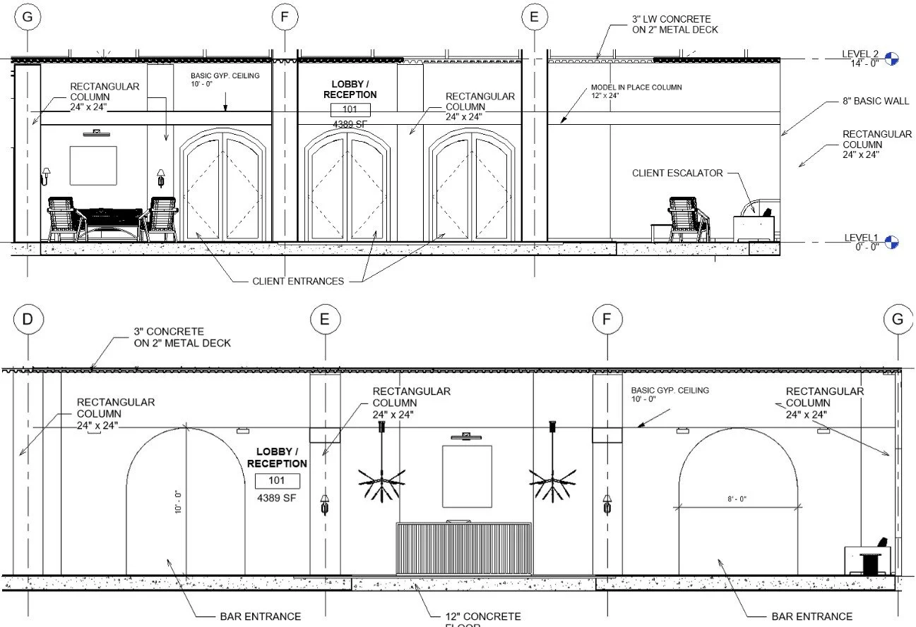
URRACA EMBASSY

The Urraca Embassy is a sustainable luxury resort located on the Nevada-California state line.

It is designed to serve as a lush hospitality oasis amidst the vibrant nightlife and natural beauty of South Lake Tahoe.

The project draws inspiration from the historical significance of an oasis, offering a fertile ground for rest, recreation, and cultural exchange within a premier destination.

Previous
Previous

Brynn's Social Lounge

Next
Next

Prairie Modern Sanctuary